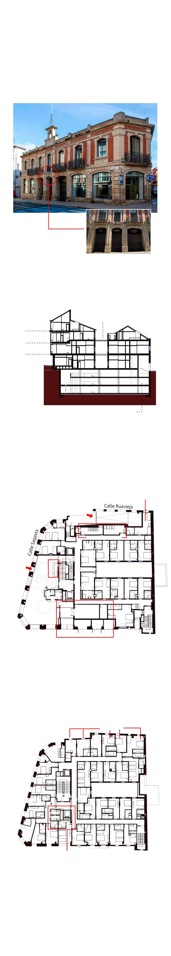
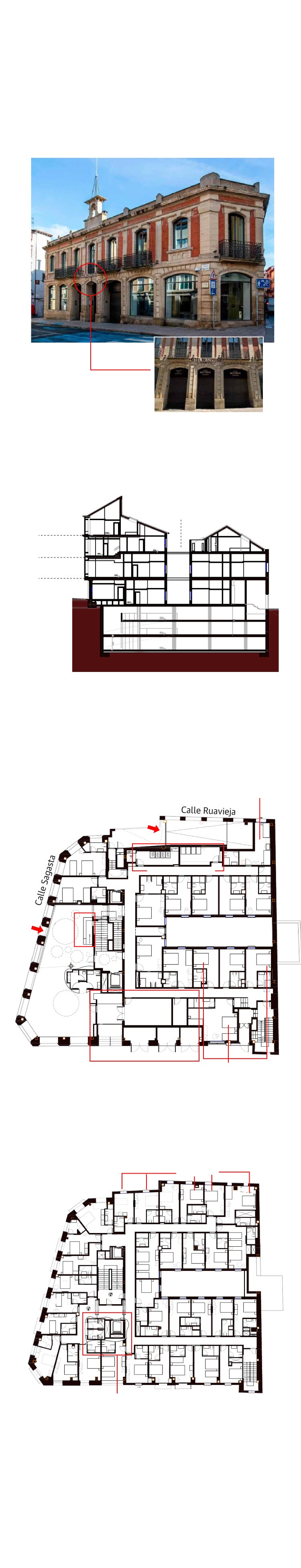
Bestprice avanza en su proyecto de hotel y solicita licencia para la reforma del antiguo Casino
La cadena proyecta un nuevo alojamiento de 'estilo boutique' de 63 habitaciones con una inversión de más de 4,5 millones en el edificio 'Electra' de Sagasta
Lo del nuevo hotel en el antiguo Casino marcha y da un nuevo paso. Así, y según lo previsto, Bestprice avanza en su proyecto de ... alojamiento turístico en el Casco Antiguo de Logroño y ya ha solicitado formalmente «licencia conjunta ambiental y de obras», lo que corresponde en tales casos, para la reforma del edificio 'Electra' de la calle Sagasta de cara a su anunciado cambio de uso (algo en lo que se trabaja desde mediados del pasado 2021).
El anuncio, publicado esta misma semana en el Boletín Oficial de La Rioja (BOR), se formaliza después de que el pasado 23 de octubre se presentase oficialmente la iniciativa empresarial de la cadena hotelera española especializada en el segmento de «hoteles boutique económicos premium» (que cotiza en Euronext París y busca expandirse internacionalmente), y el conocido Grupo Orenes (propietario del histórico inmueble que hasta noviembre de 2020 mantuvo su actividad como gran espacio de apuestas y juegos de azar).

El nuevo hotel de Logroño
Con 63 habitaciones, el proyecto reformará el interior del edificio manteniendo la fachada.
El acceso al
hotel mantendrá
la estructura actual
Alzado del edificio
Patio interior
3ª
2ª
1ª
Planta Baja
Aparcamiento
Planta Baja
El hotel no cuenta con servicio de hostelería
Acceso al parking
Habitaciones
8
3
Estancias privadas
2
4
5
6
7
1
Patio interior
14
Recepción
9
10
11
12
13
Zonas de
almacenamiento
Planta primera
En esta planta se plantean 32 habitaciones
Habitaciones
7
8
6
5
4
1
2
10
14
11
13
12
3
27
Patio interior
15
28
25
24
23
26
29
16
32
20
30
17
31
18
19
21
Estancias privadas
Gráfico: David F. Lucas

El nuevo hotel de Logroño
Con 63 habitaciones, el proyecto reformará el interior del edificio manteniendo la fachada.
El acceso al
hotel mantendrá
la estructura actual
Alzado del edificio
Patio interior
3ª Planta
2ª Planta
1ª Planta
Planta Baja
Aparcamiento
Planta Baja
El hotel no cuenta con servicio de hostelería
Habitaciones
Acceso al parking
8
3
Estancias privadas
2
4
5
6
7
1
Patio interior
14
Recepción
9
10
11
12
Sala de eventos
13
Zonas de
almacenamiento
Habitaciones
Planta primera
En esta planta se plantean 32 habitaciones
Habitaciones
7
8
6
5
4
9
1
2
10
14
11
13
12
3
27
Patio interior
15
28
25
24
23
22
26
29
16
32
20
30
17
31
18
19
21
Estancias privadas
Gráfico: David F. Lucas

El nuevo hotel de Logroño
Con 63 habitaciones, el proyecto reformará el interior del edificio manteniendo la fachada.
Alzado del edificio
Patio interior
3ª Planta
2ª Planta
El acceso al
hotel mantendrá
la estructura actual
1ª Planta
Planta Baja
Aparcamiento
Habitaciones
Planta Baja
Acceso al parking
El hotel no cuenta con servicio de hostelería
8
3
Estancias privadas
2
4
5
6
7
1
Accesos
Patio interior
14
Recepción
9
10
11
12
Sala de eventos
13
Zonas de almacenamiento
Habitaciones
Planta primera
En esta planta se plantean 32 habitaciones
Habitaciones
7
8
6
5
4
9
1
2
10
14
11
13
12
3
27
Patio interior
15
28
25
24
23
22
26
29
16
32
20
30
17
31
18
19
21
Estancias privadas
Gráfico: David F. Lucas
Una publicación, «según proyecto básico», a fin de que quienes se consideran interesados puedan presentar alegaciones en el Ayuntamiento, concretamente en el negociado de licencias de actividades. El futuro hotel, tal y como ya se informó, contará con 63 habitaciones, más de 4,5 millones de euros de inversión, 18 meses de plazo hasta su apertura y la creación de entre 15 y 20 empleos directos.
Los datos, dados a conocer tras el anuncio de tal reconversión por parte del propio alcalde Escobar durante el último 'Debate del estado de la ciudad', servirán para dar forma a un proyecto que aspira a hacerse un hueco entre la creciente oferta hotelera capitalina «combinando precios competitivos con diseño moderno, servicio personalizado y habitaciones de categoría superior».
La solicitud de licencia, con firma del citado alcalde a 1 de diciembre de 2025, se ajusta a los plazos ofrecidos hace ahora poco más de un mes: apertura prevista para el segundo trimestre de 2027, «habida cuenta de que el procedimiento de la tramitación urbanística y de las sucesivas licencias y autorizaciones se prolongará durante seis meses y las obras del interior tardarán cerca de un año», en palabras del director de la compañía, Óscar Sánchez.
Las previsiones son seis meses de tramitación y un año de obras con el objetivo de abrir en el segundo trimestre de 2027
La operación urbanística es posible tras el cambio de uso ya establecido durante el pasado mandato, cuando el Pleno de Logroño aprobó tal modificación a fin de que el edificio, que mantendrá su apariencia externa, pudiese albergar actividad hotelera (como 'residencial no vivienda' en el número 10 de la calle Sagasta, dentro del PERI 30 'Casa de la Virgen').
Y todo ello manteniendo la edificabilidad y densidad actuales, garantizando la conservación tipológica del inmueble en cuestión (y el grado de protección de las fachadas), y preservando su singularidad volumétrica, según lo manifestado en todo momento.
¿Tienes una suscripción? Inicia sesión